Projetos em Desenvolvimento


Encosta dos Moinhos
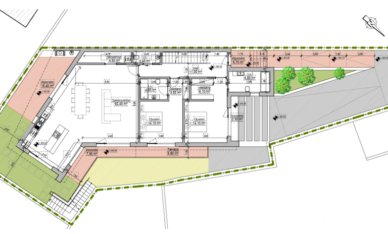
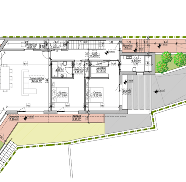
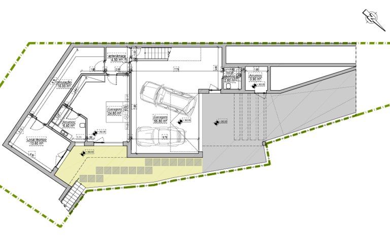
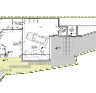
Moradias germinadas na Travessa dos Moinhos, Fátima
Localizadas numa zona de elevada tranquilidade, junto à natureza da Serra d'Aire e Candeeiros. O ambiente calmo e reservado destas moradias alia-se à proximidade do centro de Fátima, com acessos rápidos à autoestrada que garantem total conveniência no quotidiano.
Estas habitações de arquitetura contemporânea, nas tipologias V3 e V4, oferecem 330 m² de área bruta e uma excelente exposição solar sul/nascente. A distribuição funcional por três pisos inclui, no piso térreo, uma cozinha totalmente equipada Bosch em open-space com a sala de estar e jantar, além de um quarto, casa de banho e acesso direto ao jardim. No último piso encontra-se a zona privada, onde todas as suítes e quartos dispõem de roupeiros embutidos e varandas com vista para a natureza, a cidade e o Santuário. O piso inferior é reservado à garagem para três viaturas, lavandaria e área técnica.
Ao nível do conforto e eficiência, as moradias estão equipadas com sistemas de vanguarda, nomeadamente painéis solares, piso radiante e Ventilação Mecânica Controlada (VMC). A construção inclui ainda caixilharia em PVC de elevado desempenho, estores elétricos, pré-instalação de ar condicionado e iluminação LED. As casas de banho contam com loiças sanitárias de alta qualidade, reforçando o padrão de excelência em cada detalhe.
Construção - Encosta dos Moinhos


Projetos em Desenvolvimento
Moradia independente








Detalhes técnicos e estruturais
















Chão radiante
Pladur
Ferro
Isolamento (Acústicos e térmicos)
vmc
Ar condicionado
Arranque
Estores elétricos
Escadas suspensas
Paneis solares
Bombas de calor
Churrasqueiras
Revestimentos






Contactos
Conte com o nosso apoio para todas as suas questões
Telefone
modernexuberancia@gmail.com
+351 911 952 929
© 2025. All rights reserved.
ESCRITÓRIO
Travessa Nossa Sra das Vitórias, nº 96
2495-421, Fátima
MODERNEXUBERÂNCIA UNIPESSOAL, LDA ALVARA 108976-PAR
